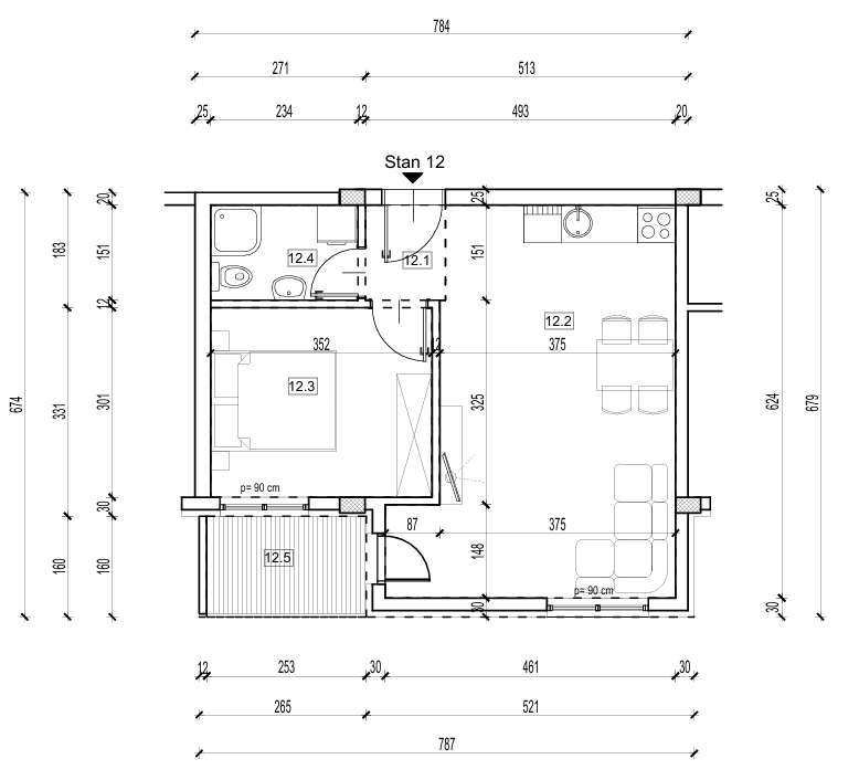
Dvosoban Stan -
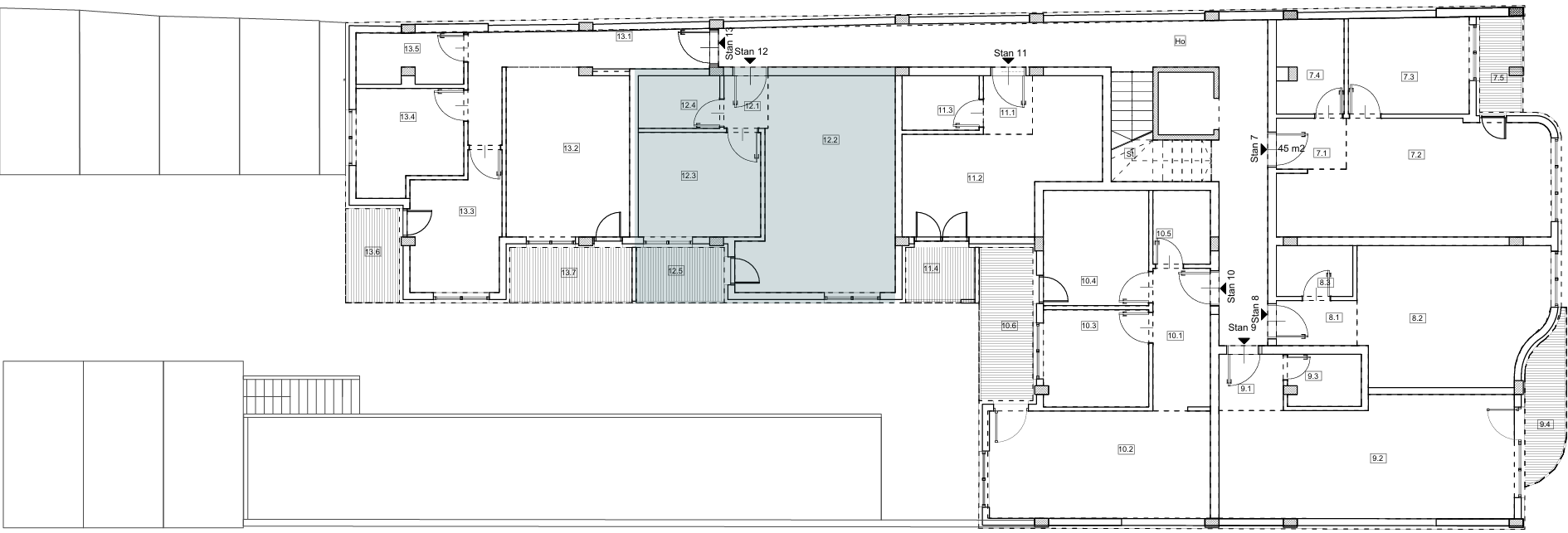
Stan broj 12
2 sobe
1 kupatilo
44.63m²
Dvosoban Stan u novogradnji Telep Residence, površine 44.63m², sa 2 sobe i 1 kupatilom. Stan se nalazi na adresi Vršačka 68, Novi Sad, u naselju Telep, Novi Sad. Objekat dolazi sa podnim grejanjem, plivajućim podovima i pametnim upravljanjem.

Pozicija Stana



Kontaktirajte Nas
Dostupni smo za odgovore na vaša pitanja, savetovanje i podršku u prodaji.

Prodaja stanova u novogradnji u Novom Sadu
Prodaja i potražnja stanova u novogradnji u Novom Sadu je u porastu. U najvećem gradu Vojvodine uvek vlada interesovanje za kvalitetnim stanovima za prodaju u širem centru grada. Osim kupovine stana kao rešavanja stambenog pitanja za porodice, veliki kupci stanova u Novom Sadu su studenti koji dolaze da studiraju, odnosno njihove porodice, pogotovo ako ima više dece u porodici. Ulaganje u kupovinu garsonjere ili jednosobnog stana u Novom Sadu, pogotovo u omiljenim novosadskim naseljima, Limanima, Telepu i Grbavici, je provereno dobra odluka. Novo naselje je traženo među porodicama sa decom, zbog svoje planske izgradnje, sadržaja i brojnih zelenih površina.


Novogradnja u Novom Sadu
Novi Sad je specifičan u odnosu na Beograd, jer u centru nema slobodnog prostora za gradnju novih zgrada. Stanovi u izgradnji su u najvećem broju u naseljima Telep i Salajka, a novogradnja polako počinje da uzima maha preko mosta, u Sremskoj Kamenici. Prema našim podacima o zgradama u izgradnji u Novom Sadu, u najvećem broju su zastupljene višeporodične nove stambene zgrade, ali grade se i novi stambeno-poslovni kompleksi.